-
建筑面积54133
-
总户数2712
-
建筑年代2020年建
-
容积率2.8
-
物业费2.00
-
绿化率50
恒大金碧新城 南
保真房源
捡漏房源
成熟商圈
精装修
室内设施
房源照片
1
2
3
4
5
6
7
8
9
10
11
查看更多图片
小区信息
恒大金碧新城
周边配套
1900
元/月
小区名称
恒大金碧新城
商铺行业
未知
地段
未知
建筑面积
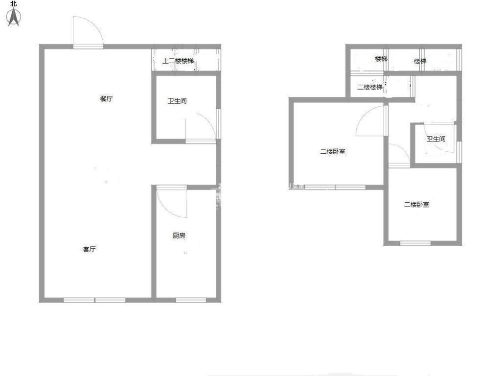
65.69㎡
进深
未知
层高
未知
宽度
未知
装修
精装修
位置
未知
楼层/总高
高楼层/共25层
付款方式
一次付清
挂牌时间
2026-03-20 10:17:24
详细地址
东营路1号

