-
建筑面积100000
-
总户数973
-
建筑年代2014年建
-
容积率2.1
-
物业费暂无资料
-
绿化率35
紫明山庄 南北
保真房源
捡漏房源
成熟商圈
简单装修
室内设施
房源照片
2
3
4
5
6
7
8
9
10
11
12
查看更多图片
小区信息
紫明山庄
周边配套
1100
元/月
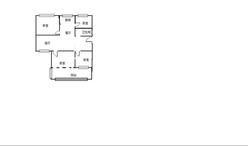
厅室4室2厅1卫1阳台
朝向南 建筑面积134.85㎡

