-
建筑面积暂无资料
-
总户数9560
-
建筑年代1996年建
-
容积率2
-
物业费0.30
-
绿化率47.8
王官庄小区 南
保真房源
捡漏房源
成熟商圈
简单装修
室内设施
房源照片
2
3
4
5
6
7
8
查看更多图片
小区信息
王官庄小区
周边配套
1100
元/月
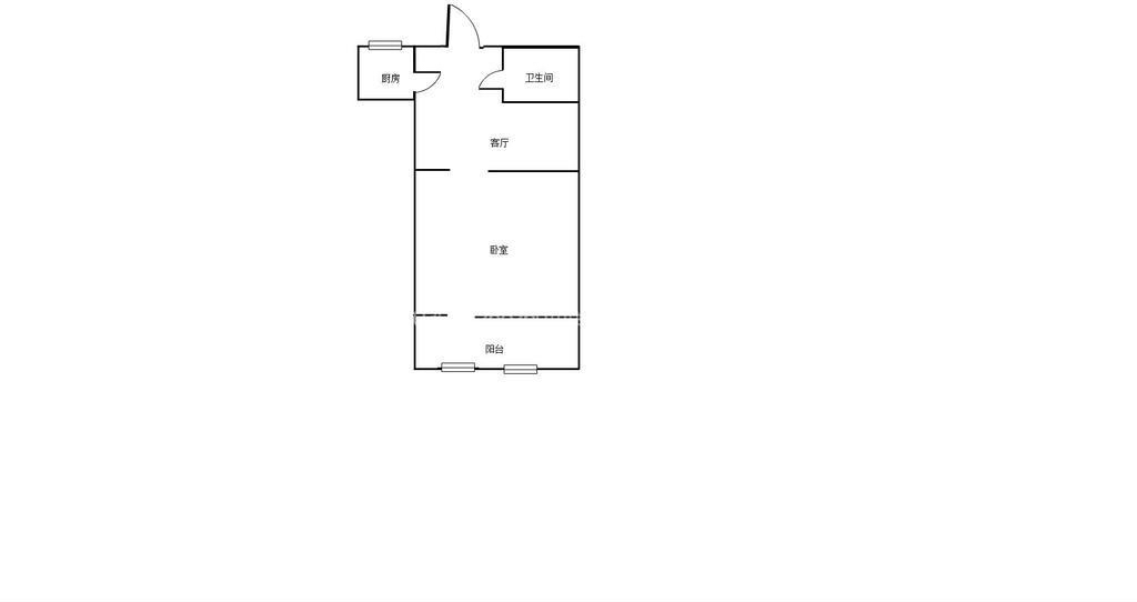
厅室1室1厅1卫1阳台
朝向南 建筑面积42.67㎡

