-
建筑面积175000
-
总户数688
-
建筑年代2017年建
-
容积率3.6
-
物业费1.65
-
绿化率35
中建国熙台 南
保真房源
捡漏房源
成熟商圈
精装修
室内设施
房源照片
2
3
4
5
6
7
8
9
10
11
查看更多图片
小区信息
中建国熙台
周边配套
5500
元/月
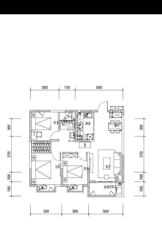
厅室3室2厅1卫1阳台
朝向南 建筑面积106.39㎡

