-
建筑面积314685
-
总户数3273
-
建筑年代2011年建
-
容积率2.2
-
物业费0.85
-
绿化率35
德裕家园一区 南北
保真房源
捡漏房源
成熟商圈
精装修
室内设施
房源照片
2
3
4
5
6
7
8
9
10
查看更多图片
小区信息
德裕家园一区
周边配套
2200
元/月
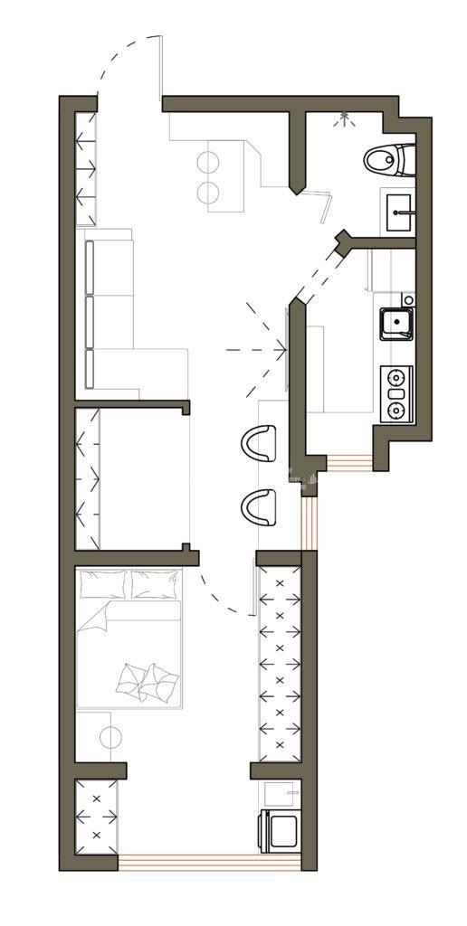
厅室2室2厅1卫0阳台
朝向南北 建筑面积57.25㎡

