-
建筑面积84170
-
总户数1562
-
建筑年代
-
容积率2.1
-
物业费暂无资料
-
绿化率35
济高海棠郡 南北
保真房源
捡漏房源
成熟商圈
精装修
室内设施
房源照片
2
3
4
5
6
7
8
9
10
查看更多图片
小区信息
济高海棠郡
周边配套
2400
元/月
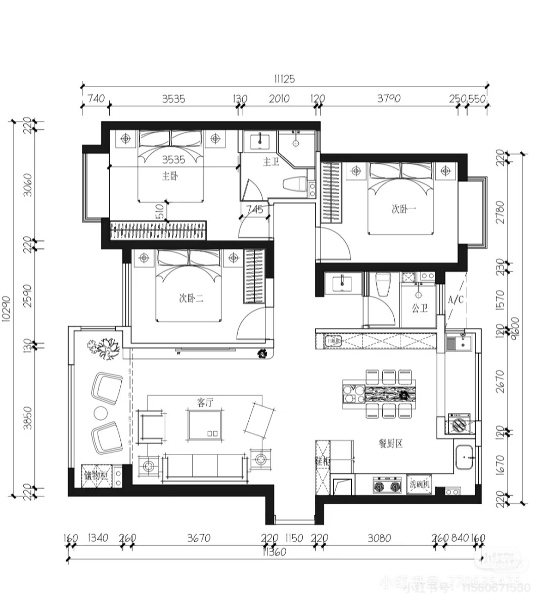
厅室3室2厅2卫1阳台
朝向南北 建筑面积109㎡
小区名称
济高海棠郡
所在楼层
中楼层/共18层
装修标准
精装修
租赁方式
整租
配套电梯
无
详细地址
科航路以南,科文路以北,三星路以东,春博路以西
挂牌时间
2026-03-20 10:17:24

