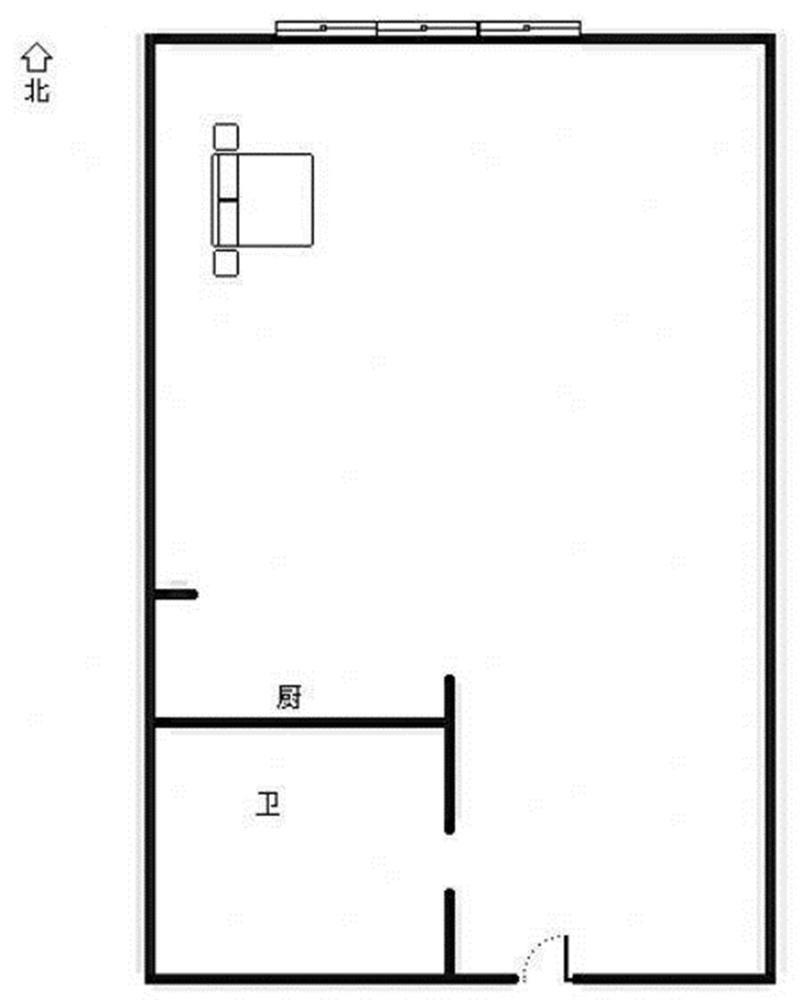
2:这套房子是南北方向 户型超好 朝向南北 每个房间都很大,客厅空间很大 特别敞亮 采光相当好 从太阳升起到落下一直都有采光,空间设计合理,小区管理制度完美,高层花园美。
力高国际(商住楼) 北
保真房源
捡漏房源
成熟商圈
简单装修
室内设施
房源描述
1:人文环境一流,隶属于优致社区,此房南北朝向,格局相当漂亮,双卧室和客厅都是分离开的,客厅有独立的2个面,特别好摆家具和电器,户型位置独特,视野开阔,空气清新,紧对花园,特别适合居家过日子,清晨时,您站在客厅里,淋浴着旭日的光辉,精神饱和舒畅!本房价位超值,一套超底房。
2:这套房子是南北方向 户型超好 朝向南北 每个房间都很大,客厅空间很大 特别敞亮 采光相当好 从太阳升起到落下一直都有采光,空间设计合理,小区管理制度完美,高层花园美。
2:这套房子是南北方向 户型超好 朝向南北 每个房间都很大,客厅空间很大 特别敞亮 采光相当好 从太阳升起到落下一直都有采光,空间设计合理,小区管理制度完美,高层花园美。
房源照片
2
3
4
5
6
查看更多图片
小区信息
力高国际(商住楼)
周边配套
1600
元/月
小区名称
力高国际(商住楼)
商铺行业
未知
地段
未知
建筑面积
50㎡
进深
未知
层高
未知
宽度
未知
装修
简单装修
位置
未知
楼层/总高
中楼层/共27层
付款方式
挂牌时间
2026-03-20 10:17:24
详细地址
奥体西路,近花园东路

