-
建筑面积57500
-
总户数1666
-
建筑年代2000年建
-
容积率2
-
物业费0.50
-
绿化率35
明珠西苑 南北
保真房源
捡漏房源
成熟商圈
简单装修
室内设施
房源照片
1
2
3
4
5
6
7
8
9
查看更多图片
小区信息
明珠西苑
周边配套
1200
元/月
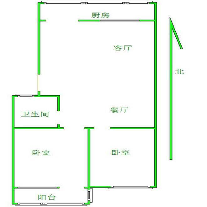
厅室2室2厅1卫1阳台
朝向南北 建筑面积83㎡

