-
建筑面积暂无资料
-
总户数330
-
建筑年代1990年建
-
容积率暂无资料
-
物业费暂无资料
-
绿化率暂无资料
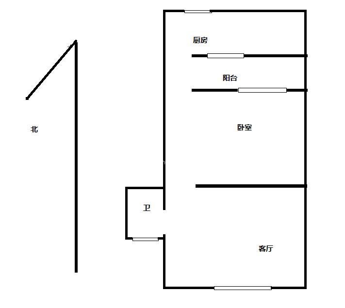
纬一路478号 南北
保真房源
捡漏房源
成熟商圈
简单装修
室内设施
房源照片
2
3
4
5
6
7
8
查看更多图片
小区信息
纬一路478号
周边配套
1400
元/月
厅室1室1厅1卫1阳台
朝向南北 建筑面积50㎡

